14
Проект В-162
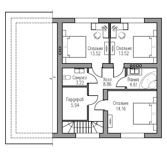
Площадь дома:
162.37
Размер дома:
12.68х10.16
Гараж:
с гаражем
Мансарда:
без мансарды
заказать расчет
Варианты фундамента
Изменить проект
Описание проекта


Фундамент под стены здания – плита железобетонная с ребрами жесткости под несущими стенами. Бетон армированный объемным каркасом.

Наружные стены  - трехслойные следующего состава:

- наружный слой толщиной 120мм – кладка из лицевого керамического кирпича марки М125  ГОСТ 530-2012 на цементном растворе М100 ГОСТ 28013-98

- вентилируемый воздушный зазор толщиной 35 мм

- панели полистиролбетонные плотностью Д600 - толщина 400 мм

Внутренние стены - панели полистиролбетонные плотностью Д600.

Стены с вентиляционными каналами – толщиной 380мм - кладка из полнотелого силикатного кирпича М150 ГОСТ 379-95 на цементном растворе М100 ГОСТ 28013-98, выше чердачного перекрытия из керамического полнотелого кирпича марки М150 ГОСТ 530-95 на цементном растворе М100 ГОСТ 28013-98.

Стены с дымоходными каналами – толщиной 380 мм – кладка из керамического полнотелого кирпича марки М150 ГОСТ 530-95 на цементном растворе М100 ГОСТ 28013-98.

Перемычки в проемах внутренних, наружных стен и перегородках сборные железобетонные по Серии 1.038.1-1 выпуск 1…5.

Перекрытие над первым этажем – железобетонные облегчённые плиты

Кровля- устройство стропильной системы покрытие металлочерепицей.

Покрытие кровли – металлочерепица

Окна – с тройным остеклением в ПВХ преплетах по ГОСТ 30673-99

Подоконные доски – из панельных ПВХ-профилей

Дверные блоки – деревянные по ГОСТ 24698-81


Строение фундамента:


  • 1. Плита железобетонная с ребрами жесткости под несущими стенами. Бетон армированный объемным каркасом.
  • 2. Геотекстиль
  • 3. Песчаная подушка
  • 4. Устройство закладных инженерных коммуникаций согласно проекта



Проект может быть изменен по вашему желанию!
Мы поможем вам создать дом вашей мечты! Для этого мы скорректируем размеры дома, поменяем планировки, поможем подобрать строительные и отделочные материалы, а также уменьшить или увеличить высоту этажей согласно вашим пожеланиям. Расскажите, чего вы хотите, и мы поможем реализовать ваши мечты!
ВНИМАНИЕ! Заказывая строительство у нас, проект этого дома вы получаете бесплатно!
Узнать больше об этом проекте можно у нашего менеджера.


Этапы строительства


ЭТАП №1 мобилизация, фундамент

  • 1. Плита железобетонная с ребрами жесткости под несущими стенами. Бетон армированный объемным каркасом.
  • 2. Геотекстиль
  • 3. Песчаная подушка
  • 4. Устройство закладных инженерных коммуникаций согласно проекта

ЭТАП №2 стены и перекрытия 1-го этажа H(черн)=3200mm

Наружные стены — Блоки из полистеролбетона паз-гребень, толщина 400мм
Внутренние несущие — Блоки из полистеролбетона паз-гребень, толщина 300мм
Внутренние перегородки стен — Блоки из полистеролбетона паз-гребень, толщина 150мм


ЭТАП №3 стены и перекрытия 2-го этажа H=3200mm

Наружные стены: панели полистиролбетонные плотностью Д600 - толщина 400 мм
Внутренние стены: панели полистиролбетонные плотностью Д600 - толщина 300 мм, перегородки толщ 200мм


ЭТАП №4 кровля

Кровля, покрытие металлочерепица.
Устройство стропильной системы покрытие металлочерепицей.



ИТОГО * Стоимость террас рассчитывается дополнительно